《建筑地面设计规范》3.1.9规定:水泥砂浆厚度不应小于20mm。某项目楼面做法为30厚水泥砂浆,故此项目楼面水泥砂浆面层做法可优化至20mm厚。

据《倒置式屋面工程技术规程》 JGJ 230-2010 中规定:屋面防水等级应为Ⅰ级,需要设置两道防水。某些项目屋面为瓦屋面但设有两道防水,此类情况瓦材可作为一道防水,故可取消一道防水层,仍视为一级防水。

地库外轮廓线应尽量规整,尽量减小不利用空间,减少开挖成本,便于施工支模。

车库内设备用房宜设置在不影响停车的红色框空间内。如设备用房设置在主楼下方、不规整区域等,如下图:

▲ 利用主楼下方及周边不规整区域设置设备
车库内无法利用空间尽可能布置微型车位或子母车位,提高车位利用率。

▲ 无法预留正常车位宽度可做微型车位
车道与车道出入口宽度不宜过大,以免造成不必要的浪费。单车道宽度为3.0m,双车道宽度为5.5m;单车道出入口净宽满足4.0m,双车道出入口净宽满足7.0m(保证项目品质时可适当加宽)。

▲ 车道宽度示意图
坡道宜优先考虑采用“直线坡段+曲线缓坡”的形式。
根据《车库建筑设计规范》JGJ 100-2015规定:直线缓坡水平长度不小于3.6m,曲线缓坡水平长度不小于2.4m。故采用曲线缓坡比直线缓坡需要长度更短,更加节约地下车库的空间,可以布置更多车位。而且曲线缓坡给驾车人的感觉更加平滑、舒适。如图:

▲ 直线坡道曲线缓坡剖面示意图

车库层高不宜过高,满足“梁高+设备管+车库净高+面层”即可,以免造成不必要的浪费。普通车库净高为2.2m,机械车位净高为3.6m。

防火分区面积的划分应接近规范规定的面积上限,减少防火分区数量,减少防火卷帘的设计。以设喷淋为例:自走式汽车库防火分区面积≤4000平方米,机械式汽车库防火分区面积≤2600平方米,充电车库防火分区面积≤2000平方米。

▲ 自走式汽车库防火分区示意图
尽量利用塔楼楼梯进行人员疏散,当疏散数量和疏散距离不满足规范要求时(一个防火分区不少于两个疏散口),可设置地面疏散楼梯,相邻防火分区宜共用,以减少楼梯的设计(《建筑防火设计规范》GB50016-2014 2018年版——3.7.3)。

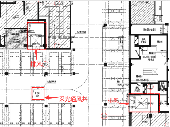
当地下车库采用通风采光天井或下沉庭院进行自然补风,可减少或取消机械补风系统设置,并可进一步减少机房面积,增加地下车库的利用面积,更可能布置更多车位。同时可减少车库建成初期的返潮结露现象。

两层及以上地下室除底层外其他标准层应采用地漏周围1m内找1%坡排水,相比于楼板做排水沟和集水井,不破坏结构层,节省造价。

▲ 地下室标准层平面图
▲ 地下室底层平面图
户内隔墙无特殊要求情况下建议采用100厚,以节省成本且增加户内使用面积。




